++ Jugendstil-Juwel im Wiener Altbau + 4-Neubau Wohnungen und 3 Altbauwohnungen + U4 Unter Sankt Veit +

1140 Wien
125 m2
Wohnfläche
4.5
Zimmer
€ 499.000,00
Kaufpreis

Beschreibung

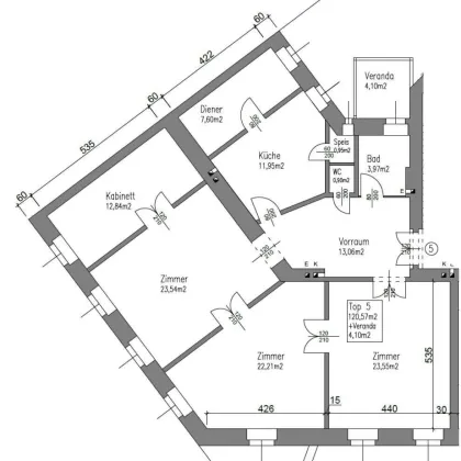
Zum Verkauf gelangt diese großräumige, auf ca. 125 m² aufgeteilte 4,5-Zimmerwohnung mit separater Küche und Esszimmer in einem klassischen Altbaustilhaus


Diese 4,5-Zimmer-Altbau-Wohnung im Jugendstil besticht durch Ihre wundervollen und großzügigen Räume, mit einem Kamin, Flügeltüren, sowie hohe Wände, große Fenster, welche viel Helligkeit in der gesamten Wohnung bringt.

Die lichtdurchflutete Wohnung mit Veranda ist folgendermaßen aufgeteilt:

+ Vorraum 13,06 m², mit Fischgrätenparkett ausgestattet
+ Zimmer1 23,55 m², mit Fischgrätenparkett ausgestattet
+ Zimmer2 22,21 m², mit Fischgrätenparkett ausgestattet
+ Zimmer3 23,54 m², mit Kamin
+ Zimmer4 12,84 m², mit Fischgrätenparkett ausgestattet
+ Küche 11,59 m², Boden verfliest - Hofseitig
+ Kabinett 7,60 m²
+ Bad 03,97 m², Wanne und mit Waschmaschinenschluss ausgestattet
+ Abstellraum 0,95 m²
+ Toilette 0,90 m², mit Fenster ausgestattet
_______________________________________________________
gesamt 120,57 m²

+ Veranda 4,10 m²

AUSSTATTUNG:
+ Hohe Wände (über 3,5 Meter), charakteristisch für Altbauwohnungen
+ Fischgrätenparkett
+ Flügeltüren
+ Kamin
+ Lift
+ Veranda 4,10 m² Innenhofseitig
+ 2fach verglaste Fenster
+ Abstellraum
+ Kellerabteil ca. 1 m²

LAGE/INFRASTRUKTUR:
In unmittelbarer Umgebung finden Sie alles nötige für den täglichen Gebrauch (Geschäfte, Post, Banken, Schule, etc...)
Die U-Bahn-Station U4 Unter Sankt Veit ist in 100 Meter fußläufig erreichbar.
Ebenfalls ganz in der Nähe und zu Fuß erreichbar befindet sich Stationen der Buslinie 47A sowie Straßenbahnlinien 49 und 52,
welche auch für eine gute Verkehrsanbindung ins Wiener Zentrum sorgen.

HWB 125,02 kwh/m²a
Klasse: D
fGEE 2,33
Klasse: D
gültig bis 21.04.2029

Kaufpreis: € 499.000,- Geldlasten- und bestandsfrei


In diesem sanierten Haus befinden sich noch 3 weitere Wohnungen 

TOP 06 -----------------116 m² plus Veranda 5,33 m²
TOP 07 ----------------- 124,62 m², Verkauft
TOP 05 ----------------- 129,57 m², Veranda/Loggia 4,10 m²
NEUBAU  BJ1982
TOP 11 ----------------- 60,31 m²
TOP 12 ----------------- 42,00 m²
TOP 13 ---------------- 67,00 m² (Galerie 12 m²)
TOP 14 ---------------- 88,00 m² (22 m² Galerie)
Gesetzliche Nebenkosten:
3,5% Grunderwerbsteuer
1,1% Grundbucheintragungsgebühr
3,0% Maklerhonorar + 20% USt.
? Vertragserrichtungskosten + 20% USt..


Anbieter: gb-direkt Finanzberatung & Immobilienhandel GmbH
Ansprechpartner: Frau Benes
Mobil: 0699 11 60 87 06
E-Mail: [email protected]

Detaillierte Unterlagen (Exposé) senden wir gerne auf Anfrage zu.

BITTE BEACHTEN SIE, DASS WIR NUR ANFRAGEN MIT VOLLSTÄNDIGER ANGABE DER ANSCHRIFT UND ANGABEN ZUR PERSON
(NAME, ADRESSE, TELEFON, EMAIL) BEARBEITEN KÖNNEN.

Wir weisen darauf hin, dass alle Angaben, auf die sich das vorliegende Exposé/Inserat beziehen, sich ausschließlich auf Daten und Angaben von Verkäufern/Vermietern bzw. sachkundigen Dritten stützen und wir für diese keine, wie auch immer geartete, Haftung übernehmen. Des Weiteren geben wir bekannt, dass zwischen den Verkäufern/Vermietern und gb-direkt Finanzberatung & Immobilienhandel GmbH, kein familiäres oder wirtschaftliches Naheverhältnis oder gesellschaftliche Verflechtung besteht. Irrtümer und Änderungen sowie Zwischenverkauf vorbehalten.


Hinweis gemäß Energieausweisvorlagegesetz:

Ein Energieausweis wurde vom Eigentümer bzw. Verkäufer, nach unserer Aufklärung über die ab 1.12.2012 geltende generelle Vorlagepflicht, sowie Aufforderung zu seiner Erstellung noch nicht vorgelegt. Daher gilt zumindest eine dem Alter und der Art des Gebäudes entsprechende Gesamtenergieeffizienz als vereinbart. Wir übernehmen keinerlei Gewähr oder Haftung für die tatsächliche Energieeffizienz der angebotenen Immobilie.

Der Vermittler ist als Doppelmakler tätig.

In der Umgebung
Bus
< 1km
U-Bahn
< 1km
Straßenbahn
< 1km
Bahnhof
< 1km
Autobahnanschluss
< 5km
Arzt
< 1km
Apotheke
< 1km
Klinik
< 1km
Krankenhaus
< 1km
Supermarkt
< 1km
Bäckerei
< 1km
Einkaufszentrum
< 3km
Schule
< 1km
Kindergarten
< 1km
Universität
< 2km
Höhere Schule
< 3km
Bankomat
< 1km
Bank
< 1km
Post
< 1km
Polizei
< 1km
Quelle: OpenStreetMap / Entfernungsangaben Luftlinie

Anbieter kontaktieren

Weitere Objekte in diesem Projekt

Letzte Änderung: 29.10.2025, 12:15:06 Uhr; Referenz-Nummer: 1587/64874
Zurück